Despre noi

Consiliere imobiliară Ce spun clienții
Adaugă anunț Tel: 0774 519 519 Calculator taxe notariale Contact

0

WhatsApp

Invest Imobiliare

Luni - Vineri, 09:00 - 18:00

Bun venit!
Ce informații vă putem oferi?
Deschide CHAT

CHAT

Popas Pacurari, Iasi, ID P8421

COMISION 0%! INTABULAT! 2 CAMERE+ TERASA CU VEDERE PANORAMICA
108300 EUR

Anunt actualizat la: 31 March, 2026, de Dragos Popoaia, Consilier Imobiliar.

Adauga la favorite

Sumar proprietate

De vânzare

Apartament

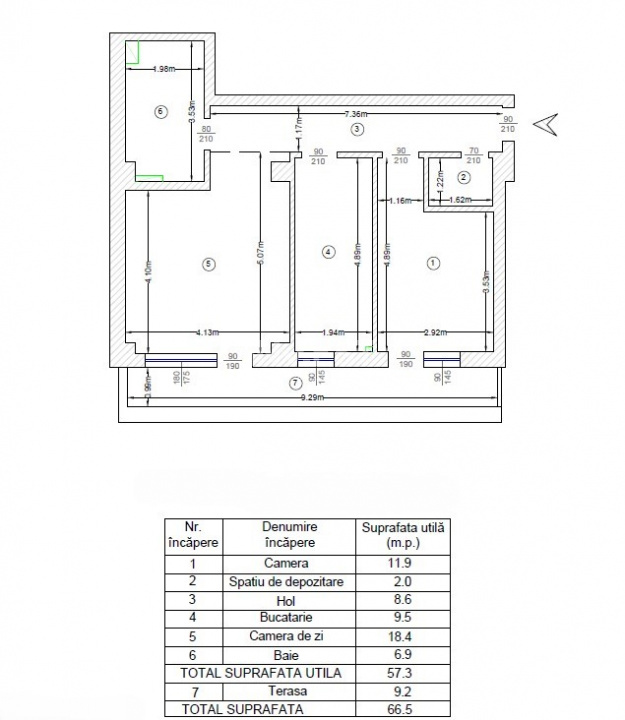
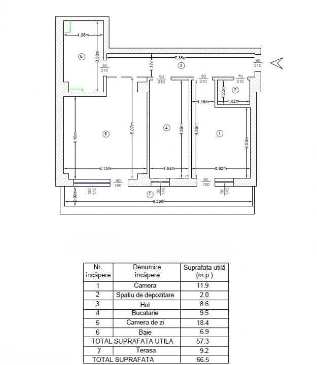
66.5 mp

Descriere

Comision 0% - pret direct de la dezvoltator. Ansamblu rezidential nou in Valea Lupului cu acces rapid catre Rond Pacurari. Este compus din 3 blocuri alipite , acces privat cu bariera, statie de autobuz langa complex. Pentru detalii suplimentare și vizionări, vă rugăm să ne contactați la numărul 0753.482.114. Nu ratați ocazia de a vă muta într-o locuință modernă și rafinată! Locul de parcare intabulat este disponibil la pretul de 5000 euro.

Detalii şi specificaţii

ID proprietate:

P8421

Preţ:

108300 EUR

Suprafaţă construită:

66.5 mp

Suprafaţă utilă:

57.3 mp

Camere:

2

Clasa energetica:

B

Băi:

1

Parcări:

1

Ani construcţie:

2025

Tip proprietate:

apartament

Proprietate:

DE VÂNZARE

UTILITĂȚI

Utilităţi generale:

Curent, Apa, Canalizare, Gaz, CATV, Acces internet, Fibra optica

Sistem încălzire:

Centrala proprie, Incalzire pardoseala

Climatizare

Aer conditionat

FINISAJE

Izolaţii termice:

Exterior

Pereţi:

Vopsea lavabila, Var, Faianta

Podele:

Parchet, Gresie

Stare interior:

Finisat

Ferestre cu geam termopan:

PVC,

Uşă intrare:

Metal, Celulare, Lemn

DOTĂRI

Alte spaţii utile:

Debara

Bucătărie:

Nemobilata, Neutilata

Contorizare:

Apometre, Contor caldura, Contor gaz, ,

Mobilat:

Nemobilat

Dotări imobil:

Interfon

Calculator ipotecar

Va ganditi sa solicitati un credit bancar? Va ajutam sa estimati costurile in functie de credit si perioada:

EUR
%
EUR
ani
EUR
%
EUR

De asemenea, gasiti informatii suplimentare despre cheltuieli aproximative cu taxele notariale aici.

Consilier

Buna ziua!

Pentru această proprietate,
Dragos Popoaia
este contactul dumneavoastră.

Contact consilier:

Suna la 0753482114 Mesaj WhatsApp Vezi oferte consilier

Solicitati detalii despre oferta P8421:

Popas Pacurari, Iasi, ID P8421

Agenția imobiliară

Invest Imobiliare®

Pd Ros, Bvd. Tutora, Nr. 4

Call Center:

0774519519

Proprietati recomandate

Va recomandam proprietati cu specificatii asemanatoare

APARTAMENTE
în Iaşi

Apartamente noi sau apartamente vechi? Zona centrală sau marginea oraşului? Soluţiile sunt complexe, multiple şi diverse. Dar noi te ajutăm să iei decizia potrivită.

Apartamente in zona Aeroport Apartamente in zona Aleea cu Ciresi Apartamente in zona Aleea Tudor Neculai Apartamente in zona Alexandru cel Bun Apartamente in zona Aparatorii Patriei Apartamente in zona Arcu Apartamente in zona Baza 3 Apartamente in zona Bd. Independentei Apartamente in zona Bicaz Apartamente in zona Bucium Apartamente in zona Bucsinescu Apartamente in zona Bularga Apartamente in zona Canta Apartamente in zona Centru Civic Apartamente in zona Ciric Apartamente in zona Copou Apartamente in zona Cotnari Apartamente in zona Cug Apartamente in zona Dacia Apartamente in zona Dancu Apartamente in zona Dealu Doamnei Apartamente in zona Dorobanti Apartamente in zona Dumbrava Rosie Apartamente in zona Ferma Liliac Apartamente in zona Frumoasa Apartamente in zona Galata Apartamente in zona Gara Apartamente in zona Granit Apartamente in zona Hala Centrala Apartamente in zona Iezareni Apartamente in zona Independentei Apartamente in zona Lunca Cetatuii Apartamente in zona Metalurgie Apartamente in zona Milcov Apartamente in zona Mircea cel Batran Apartamente in zona Miroslava Apartamente in zona Moara de foc Apartamente in zona Moara de Vant Apartamente in zona Nicolina Apartamente in zona Oancea Apartamente in zona Olimp Apartamente in zona Pacurari Apartamente in zona Padurii Apartamente in zona Palat Apartamente in zona Piata Unirii Apartamente in zona Pietrarie Apartamente in zona Podis Beldiman Apartamente in zona Podu Ros Apartamente in zona Podul de Fier Apartamente in zona Podul de Piatra Apartamente in zona Popas Pacurari Apartamente in zona Primaverii Apartamente in zona Sararie Apartamente in zona Semicentral Apartamente in zona Serele Visoianu Apartamente in zona Ses Bahlui Apartamente in zona Smardan Apartamente in zona Socola Apartamente in zona Splai Bahlui Apartamente in zona Strugurilor Apartamente in zona Sucidava Apartamente in zona Targu Cucu Apartamente in zona Tatarasi Apartamente in zona Tigarete Apartamente in zona Tomesti Apartamente in zona Tudor Vladimirescu Apartamente in zona Valea Adanca Apartamente in zona Visani Apartamente in zona Viticultori Apartamente in zona Zahorna Horbesti Apartamente in zona Zimbru Apartamente in zona Zona industriala

CASE
în Iaşi

Grădină cu flori şi vedere asupra oraşului ori case înşiruite cu vecini aproapiaţi? Oferta de case de vânzare din Iaşi a fost şi va fi mereu la înălţime şi variată, pe cel puţin... şapte coline.

Case in zona Aeroport Case in zona Aleea cu Ciresi Case in zona Aleea Tudor Neculai Case in zona Alexandru cel Bun Case in zona Aparatorii Patriei Case in zona Arcu Case in zona Baza 3 Case in zona Bd. Independentei Case in zona Bicaz Case in zona Bucium Case in zona Bucsinescu Case in zona Bularga Case in zona Canta Case in zona Centru Civic Case in zona Ciric Case in zona Copou Case in zona Cotnari Case in zona Cug Case in zona Dacia Case in zona Dancu Case in zona Dealu Doamnei Case in zona Dorobanti Case in zona Dumbrava Rosie Case in zona Ferma Liliac Case in zona Frumoasa Case in zona Galata Case in zona Gara Case in zona Granit Case in zona Hala Centrala Case in zona Iezareni Case in zona Independentei Case in zona Lunca Cetatuii Case in zona Metalurgie Case in zona Milcov Case in zona Mircea cel Batran Case in zona Miroslava Case in zona Moara de foc Case in zona Moara de Vant Case in zona Nicolina Case in zona Oancea Case in zona Olimp Case in zona Pacurari Case in zona Padurii Case in zona Palat Case in zona Piata Unirii Case in zona Pietrarie Case in zona Podis Beldiman Case in zona Podu Ros Case in zona Podul de Fier Case in zona Podul de Piatra Case in zona Popas Pacurari Case in zona Primaverii Case in zona Sararie Case in zona Semicentral Case in zona Serele Visoianu Case in zona Ses Bahlui Case in zona Smardan Case in zona Socola Case in zona Splai Bahlui Case in zona Strugurilor Case in zona Sucidava Case in zona Targu Cucu Case in zona Tatarasi Case in zona Tigarete Case in zona Tomesti Case in zona Tudor Vladimirescu Case in zona Valea Adanca Case in zona Visani Case in zona Viticultori Case in zona Zahorna Horbesti Case in zona Zimbru Case in zona Zona industriala

ÎNCHIRIERI
în Iaşi

Studenţi, tineri la început de drum sau poate tocmai demaraţi un nou business? Oferta imobiliară de apartamente, spaţii sau case de închiriat, include soluţii pentru noi toţi.

Inchirieri in zona Aeroport Inchirieri in zona Aleea cu Ciresi Inchirieri in zona Aleea Tudor Neculai Inchirieri in zona Alexandru cel Bun Inchirieri in zona Aparatorii Patriei Inchirieri in zona Arcu Inchirieri in zona Baza 3 Inchirieri in zona Bd. Independentei Inchirieri in zona Bicaz Inchirieri in zona Bucium Inchirieri in zona Bucsinescu Inchirieri in zona Bularga Inchirieri in zona Canta Inchirieri in zona Centru Civic Inchirieri in zona Ciric Inchirieri in zona Copou Inchirieri in zona Cotnari Inchirieri in zona Cug Inchirieri in zona Dacia Inchirieri in zona Dancu Inchirieri in zona Dealu Doamnei Inchirieri in zona Dorobanti Inchirieri in zona Dumbrava Rosie Inchirieri in zona Ferma Liliac Inchirieri in zona Frumoasa Inchirieri in zona Galata Inchirieri in zona Gara Inchirieri in zona Granit Inchirieri in zona Hala Centrala Inchirieri in zona Iezareni Inchirieri in zona Independentei Inchirieri in zona Lunca Cetatuii Inchirieri in zona Metalurgie Inchirieri in zona Milcov Inchirieri in zona Mircea cel Batran Inchirieri in zona Miroslava Inchirieri in zona Moara de foc Inchirieri in zona Moara de Vant Inchirieri in zona Nicolina Inchirieri in zona Oancea Inchirieri in zona Olimp Inchirieri in zona Pacurari Inchirieri in zona Padurii Inchirieri in zona Palat Inchirieri in zona Piata Unirii Inchirieri in zona Pietrarie Inchirieri in zona Podis Beldiman Inchirieri in zona Podu Ros Inchirieri in zona Podul de Fier Inchirieri in zona Podul de Piatra Inchirieri in zona Popas Pacurari Inchirieri in zona Primaverii Inchirieri in zona Sararie Inchirieri in zona Semicentral Inchirieri in zona Serele Visoianu Inchirieri in zona Ses Bahlui Inchirieri in zona Smardan Inchirieri in zona Socola Inchirieri in zona Splai Bahlui Inchirieri in zona Strugurilor Inchirieri in zona Sucidava Inchirieri in zona Targu Cucu Inchirieri in zona Tatarasi Inchirieri in zona Tigarete Inchirieri in zona Tomesti Inchirieri in zona Tudor Vladimirescu Inchirieri in zona Valea Adanca Inchirieri in zona Visani Inchirieri in zona Viticultori Inchirieri in zona Zahorna Horbesti Inchirieri in zona Zimbru Inchirieri in zona Zona industriala